MONOLOCALE IN FASE DI COMPLETA RISTRUTTURAZIONE

In vendita
Appartamento
Castel San Pietro Terme
115.000 €
Descrizione
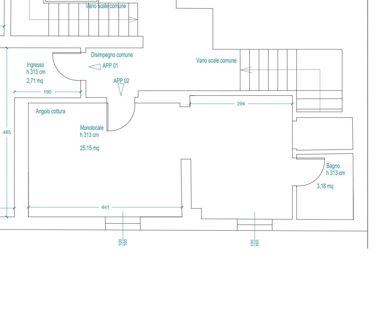
CASTEL SAN PIETRO CENTRO STORICO in palazzina di sole 4 unità abitative, IN FASE DI COMPLETA RISTRUTTURAZIONE, appartamento situato al PRIMO PIANO con ascensore composto da monolocale con divisione zona giorno zona notte, bagno oltre a cantina al piano interrato. garage doppio a parte 55.000 €. POSSIBILITA' DI SCELTA FINITURE COME DA CAPITOLATO. DISPONIBILITA' DI BILOCALI E TRILOCALI NELLA STESSA PALAZZINA. L'immobile è dotato di infissi in PVC doppiovetro, pavimentazione in gress porcellanato da scegliersi. BASSE SPESE CONDOMINIALI. Finiture di pregio. IDEALE COME INVESTIMENTO. Classe energetica minima garantina B - € 115.000 - SI 087 - Agenzia Sherlock Home - Tel. 328.5821041 - www.sherlockhome.it - La geolocalizzazione su mappa è nelle vicinanze dell'immobile in oggetto e non precisa per motivi di privacy. Tutte le informazioni relative all'immobile in oggetto verranno fornite previa sottoscrizione del foglio visita.
Caratteristiche principali
Codice:
SI 087
Città:
Castel San Pietro Terme
Categoria:
Appartamento
Locali:
1
Camere:
1
Bagni:
1
Mq:
42
Piano:
1
Anno:
1970
Anno ristrutturazione:
2025
Classe energetica:
B
Stato Immobile:
Ristrutturato
Grado:
Medio
Posizione:
Centro Storico
Panorama:
Vista Aperta
Orientamento:
Ovest
Lati Liberi:
1
Giardino:
No
Arredi:
Non Arredato
Tipo Soggiorno:
Soggiorno
Tipo Cucina:
Angolo Cottura
Riscaldamento:
Centralizzato
Tipo Riscaldam.:
Caldaia a Condensazione
Tipo Impianto:
Radiatori
Fonte Energetica:
Metano
Acqua Calda:
Autonoma
Raffrescamento:
Predisposizione
Infissi:
PVC Doppio Vetro
Serramenti:
Nuovo
Persiana:
Tapparella PVC
Pavim. Giorno:
Gres Porcellanato
Pavim. Notte:
Gres Porcellanato
Pavim. Cucina:
Gres Porcellanato
Pavim. Bagno:
Gres Porcellanato
Accesso Disabili:
No
Accesso interno disabili:
Non accessibile
Accessori
Armadio a Muro
Ascensore
Canna Fumaria
Cancello Elettrico
Doppi Vetri
Fibra Ottica
Lavanderia
Passaggio Pedonale
Porta Blindata
Rete Dati
Ripostiglio
Video Citofono
Cookie preference