Trilocale Panoramico con ampio terrazzo

In vendita
3 locali
Minerbio
197.000 €
Descrizione
MINERBIO (BO)

In interno silenzioso a pochi metri dal centro storico di Minerbio, con tutti i servizi a portata di mano, proponiamo in vendita un elegante appartamento trilocale panoramico con finiture di pregio.
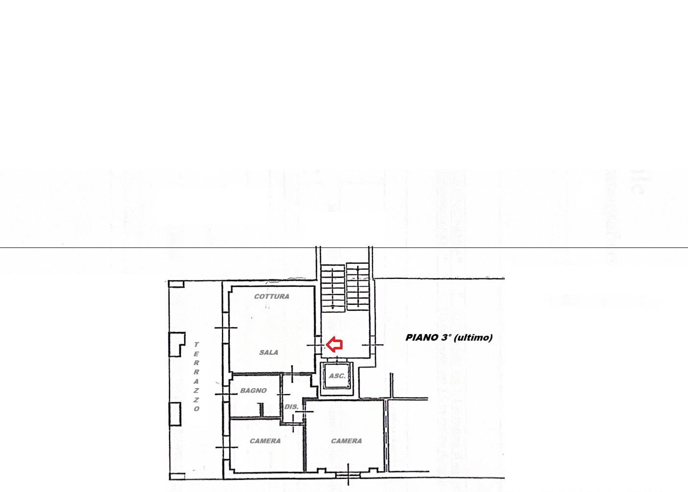
Ultimo piano con ascensore, ingresso su sala con zona cottura collegata ad un ampio terrazzo accessoriato, disimpegno nottte, 2 camere, bagno, cantina e volendo autorimessa.
PERCHE' VALE?
- esterno edificio appena ristrutturato 2025
- finiture e personalizzazioni extra capitolato
- terrazzo rifinito con accessorio e barbecue
- copertura terrazzo moduabile e apribile
- connesione internet Fibra
- Addolcitore
- volendo arredato
- volendo Autorimessa ad € 15.000
- Libero a breve
Classe energetica prevista E - € 197.000 - Rif. SI 022 - Agenzia SherlockHome - Tel: 328.5821041 www.sherlockhome.it - PERIZIE E CONSULENZE GRATUITE - La geolocalizzazione su mappa è nelle vicinanze dell'immobile in oggetto e non precisa per motivi di privacy.
Caratteristiche principali
Codice:
SI 022
Città:
Minerbio
Categoria:
3 locali
Spese condominiali:
1.200 € / anno
Locali:
3
Camere:
2
Bagni:
1
Mq:
78
Box:
1
Mq Box:
16
Terrazzi:
1
mq Terrazzo:
26
Anno:
2003
Anno ristrutturazione:
2025
Classe energetica:
E
Stato Immobile:
Ristrutturato
Grado:
Signorile
Posizione:
Centro
Panorama:
Vista Aperta
Orientamento:
Est Sud Ovest
Lati Liberi:
3
Giardino:
Comune
Arredi:
Possibilità
Tipo Soggiorno:
Soggiorno
Tipo Cucina:
Angolo Cottura
Riscaldamento:
Autonomo
Tipo Riscaldam.:
Caldaia
Tipo Impianto:
Radiatori
Fonte Energetica:
Metano
Acqua Calda:
Autonoma
Raffrescamento:
Split
Infissi:
Legno Doppio Vetro
Serramenti:
Ottimo
Persiana:
Tapparella PVC
Pavim. Giorno:
Gres Porcellanato
Pavim. Notte:
Gres Porcellanato
Pavim. Cucina:
Gres Porcellanato
Pavim. Bagno:
Ceramica
Accesso Disabili:
Nessuna Barriera
Accesso interno disabili:
Pieno accesso
Accessori
Antifurto
Aria Condizionata
Armadio a Muro
Ascensore
Canna Fumaria
Cancello Elettrico
Doppi Vetri
Fibra Ottica
Impianto Satellitare
Parco Condominiale
Passaggio Pedonale
Porta Blindata
Rete Dati
Tavolini Esterni
Tende da Sole
Vasca Idromassaggio
Video Citofono
Zanzariere
Distanze
Posizione
Centro100 m
Istruzione
Scuola materna700 m
Scuola elementare800 m
Scuola media900 m
Mezzi di trasporto
Colonnina EV200 m
Fermata metro-bus-tram50 m
Stazione di servizio1,2 km
Altri servizi
Banca500 m
Centro culturale200 m
Chiesa300 m
Farmacia600 m
Ospedale3 km
Supermercato800 m
Planimetrie
Cookie preference