AMPIO QUADRILOCALE CENTRO STORICO CON AUTORIMESSA

In vendita
Appartamento
Castel San Pietro Terme
184.000 €
Descrizione
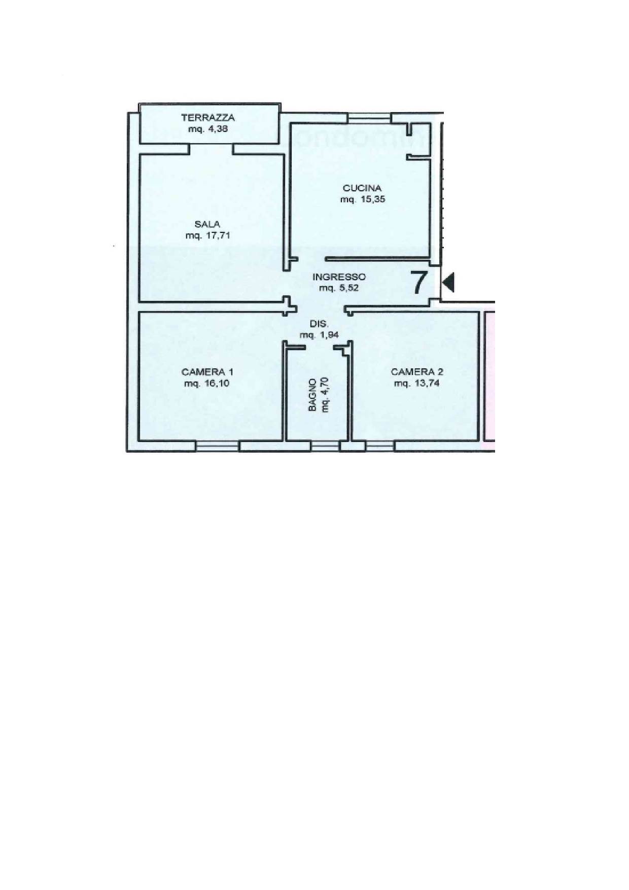
CASTEL SAN PIETRO TERME CENTRO - in posizione comoda ai servizi e vicina ai parcheggi, in palazzina in ottimo stato di sole 6 unità abitative, AMPIO quadrilocale al secondo piano, composto da soggiorno, cucina, 2 camere matrimoniali, bagno e BALCONE. Completano la proprietà la cantina l'autorimessa. RISCALDAMENTO AUTONOMO. BASSE SPESE CONDOMINIALI. Classe energetica G - € 184.000 Rif. 030 - Agenzia Sherlock Home - Tel. 051.948784 - www.sherlockhome.it - PERIZIE E CONSULENZE GRATUITE. La geolocalizzazione su mappa è nelle vicinanze dell'immobile in oggetto e non precisa per motivi di privacy. Tutte le informazioni relative all'immobile in oggetto verranno fornite previa sottoscrizione del foglio visita.
Caratteristiche principali
Codice:
SI 030
Città:
Castel San Pietro Terme
Categoria:
Appartamento
Locali:
4
Camere:
2
Bagni:
1
Mq:
104
Box:
1
Mq Box:
16
Balconi:
1
Mq Balcone:
4
Piano:
2
Anno:
1960
Classe energetica:
G
Stato Immobile:
Buono
Grado:
Medio
Posizione:
Centro
Panorama:
Vista Aperta
Lati Liberi:
2
Giardino:
No
Arredi:
Non Arredato
Tipo Soggiorno:
Salone
Tipo Cucina:
Abitabile
Riscaldamento:
Autonomo
Tipo Riscaldam.:
Caldaia
Tipo Impianto:
Radiatori
Fonte Energetica:
Metano
Acqua Calda:
Autonoma
Raffrescamento:
Split
Infissi:
PVC Doppio Vetro
Serramenti:
Ottimo
Persiana:
Tapparella PVC
Accessori
Aria Condizionata
Armadio a Muro
Doppi Vetri
Impianto Satellitare
Porta Blindata
Rete Dati
Zanzariere
Planimetrie
Cookie preference