PORZIONE DI CASA DA RISTRUTTURARE

In vendita
Porzione di Casa
Castel San Pietro Terme
95.000 €
Descrizione
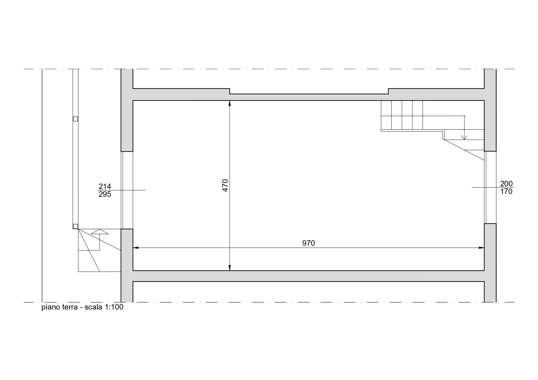
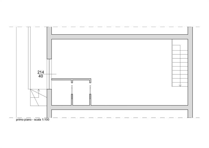
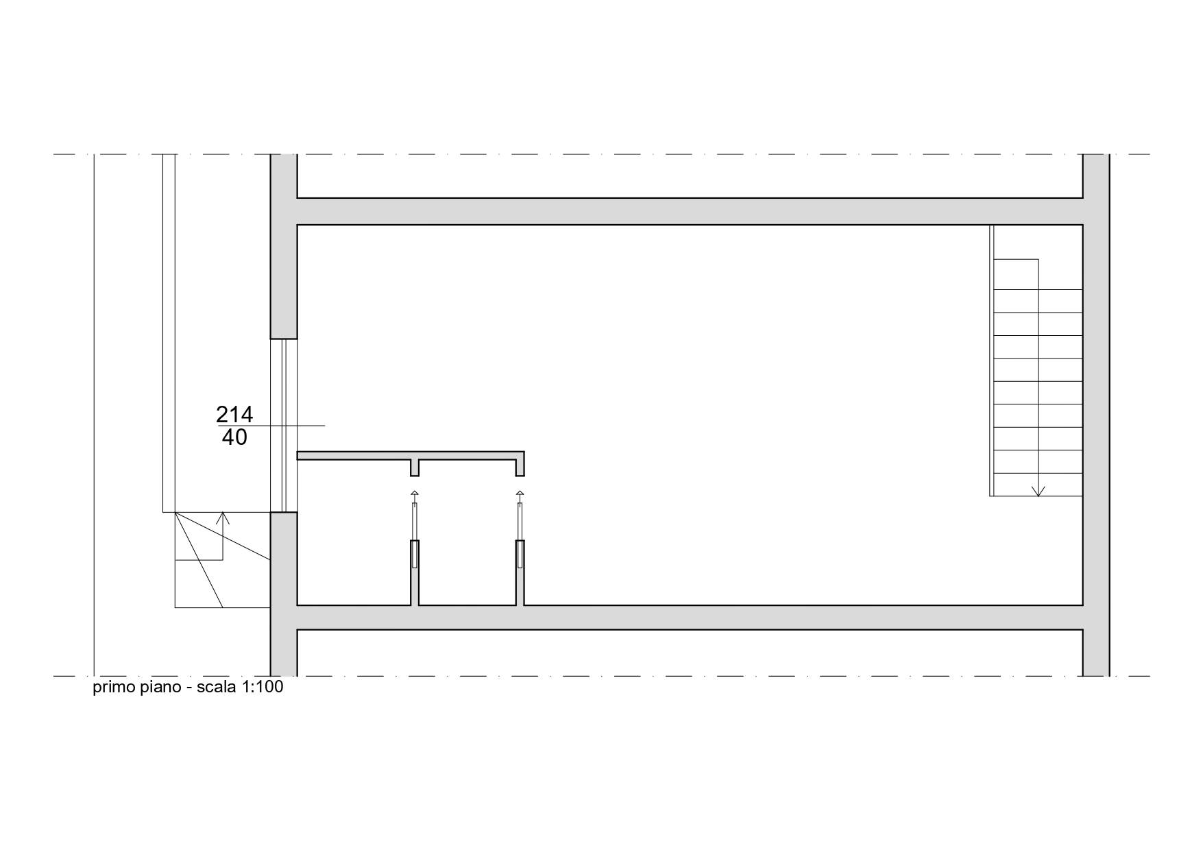
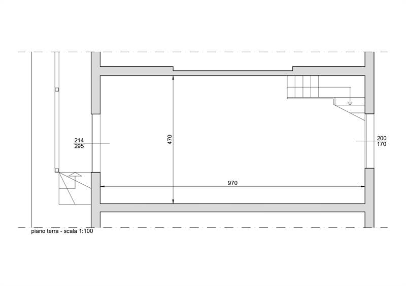
CASTEL SAN PIETRO CENTRO PORZIONE DI CASA DA RISTRUTTURARE CON INGRESSO INDIPENDENTE composta da piano terra: openspace di 40 mq., secondo piano: altri 40 mq. con bagno; possibilità di realizzare 2 camere e 2 bagni. Posto auto privato. Classe energetica: G - € 95.000 - Rif. 131 - Agenzia Sherlock Home - Tel: 051.948784 - www.sherlockhome.it - PERIZIE E CONSULENZE GRATUITE. La geolocalizzazione su mappa è nelle vicinanze dell'immobile in oggetto e non precisa per motivi di privacy. Tutte le informazioni relative all'immobile in oggetto verranno fornite previa sottoscrizione del foglio visita.
Caratteristiche principali
Codice:
SI 131
Città:
Castel San Pietro Terme
Categoria:
Porzione di Casa
Locali:
3
Bagni:
1
Mq:
79
Anno:
1980
Classe energetica:
G
Cookie preference