LUMINOSO E PANORAMICO TRILOCALE RISTRUTTURATO 2019

In vendita
Appartamento
San Lazzaro di Savena (San Lazzaro Centro)
310.000 €
Descrizione
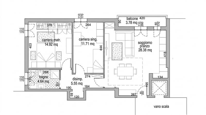
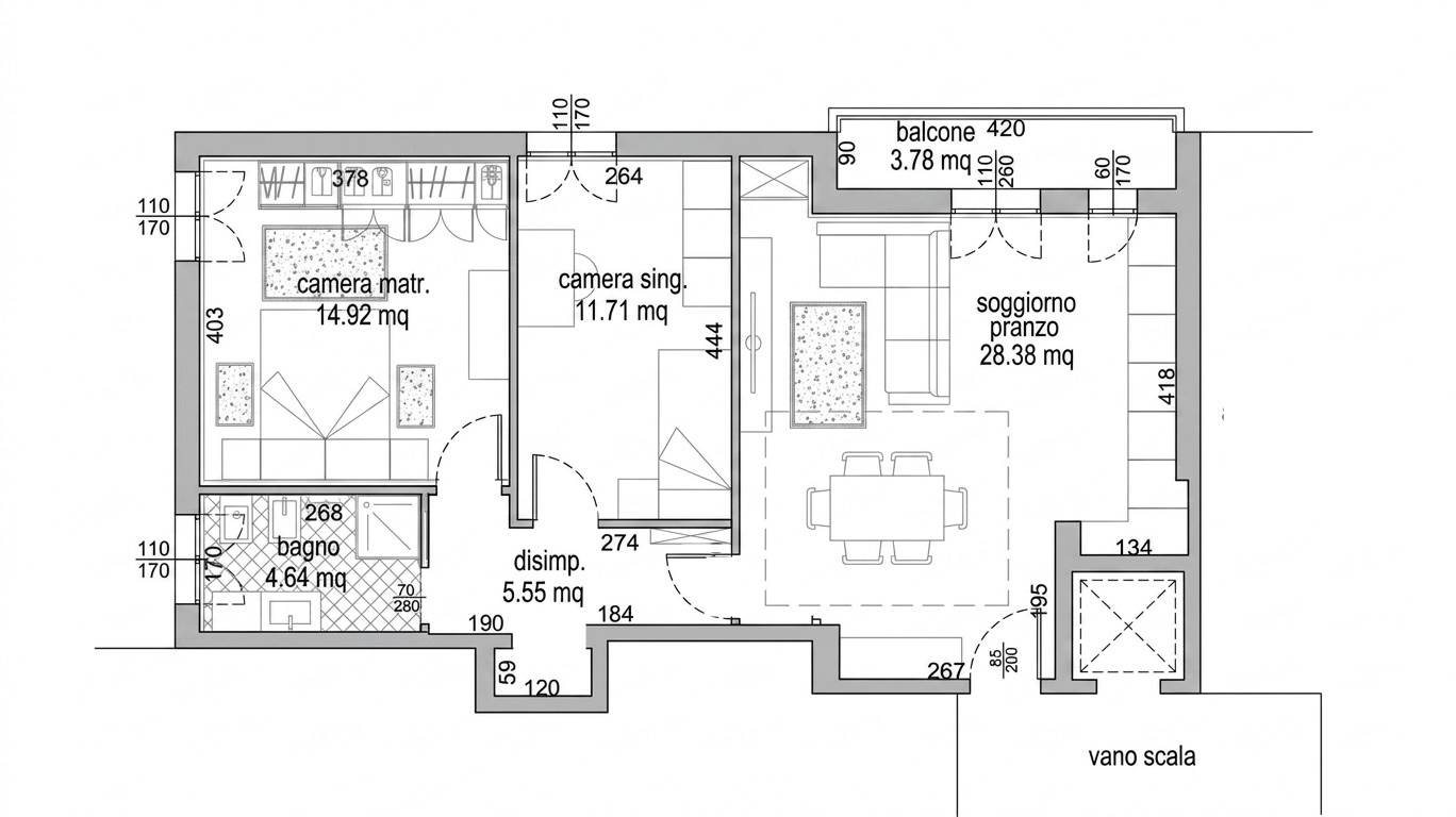
San Lazzaro Centro - In zona centrale, ricca di parcheggi e comoda a tutti i servizi (scuole, mezzi pubblici, farmacia, supermercato etc...) al quarto piano servito da ascensore, Trilocale integralmente ristrutturato nel 2019 composto da da ampio soggiorno con angolo cottura, 2 camere (1 matrimoniale e 1 ampia singola), bagno, disimpegno notte con angolo lavanderia, doppio ripostiglio, balcone esposto a sud con vista sulle colline. Completa la proprietà una comoda cantina al piano terra. Pavimenti in gres, infissi e tapparelle in p.v.c con doppi vetri, ambienti climatizzati con pompe di calore, termo-arredi, illuminazione a led, impianti certificati. Classe energetica in corso di stesura. - € 310.000 - Rif. SI 068 - Agenzia SherlockHome - Tel: 328.5821041 www.sherlockhome.it - PERIZIE E CONSULENZE GRATUITE - La geolocalizzazione su mappa è nelle vicinanze dell'immobile in oggetto e non precisa per motivi di privacy. Tutte le informazioni relative all'immobile in oggetto verranno fornite previa sottoscrizione del foglio visita.
Caratteristiche principali
Codice:
SI 068
Città:
San Lazzaro di Savena (San Lazzaro Centro)
Categoria:
Appartamento
Spese condominiali:
1.200 € / anno
Locali:
3
Camere:
2
Bagni:
1
Mq:
82
Balconi:
1
Mq Balcone:
4
Piano:
4
Anno:
1987
Anno ristrutturazione:
2019
Classe energetica:
G
Stato Immobile:
Ristrutturato
Grado:
Medio
Posizione:
Centro
Panorama:
Vista Aperta
Orientamento:
Sud Est
Lati Liberi:
2
Giardino:
No
Arredi:
Possibilità
Tipo Soggiorno:
Soggiorno
Tipo Cucina:
Angolo Cottura
Riscaldamento:
Centralizzato
Tipo Riscaldam.:
Caldaia a Condensazione
Tipo Impianto:
Radiatori
Fonte Energetica:
Metano
Acqua Calda:
Centralizzata
Raffrescamento:
Split
Infissi:
PVC Doppio Vetro
Serramenti:
Nuovo
Persiana:
Tapparella PVC
Pavim. Giorno:
Gres Porcellanato
Pavim. Notte:
Laminato
Pavim. Cucina:
Gres Porcellanato
Pavim. Bagno:
Gres Porcellanato
Accesso Disabili:
Nessuna Barriera
Accesso interno disabili:
Pieno accesso
Isolamento:
Non presente
Isolamento termico:
Nessuno
Isolamento acustico:
Nessuno
Accessori
Aria Condizionata
Ascensore
Canna Fumaria
Doppi Vetri
Fibra Ottica
Lavanderia
Porta Blindata
Video Citofono
Mappa
via renato torreggiani, 16 - San Lazzaro di Savena (BO)
Distanze
Posizione
Centro50 m
Parco pubblico500 m
Istruzione
Scuola materna100 m
Scuola elementare100 m
Scuola media100 m
Mezzi di trasporto
Colonnina EV50 m
Fermata metro-bus-tram50 m
Stazione di servizio500 m
Stazione dei treni1 km
Altri servizi
Banca50 m
Chiesa50 m
Farmacia50 m
Ospedale1 km
Supermercato100 m
Video
Planimetrie
Cookie preference