AMPIO BILOCALE DI RECENTE COSTRUZIONE (2007)

In vendita
Appartamento
San Lazzaro di Savena
245.000 €
Descrizione
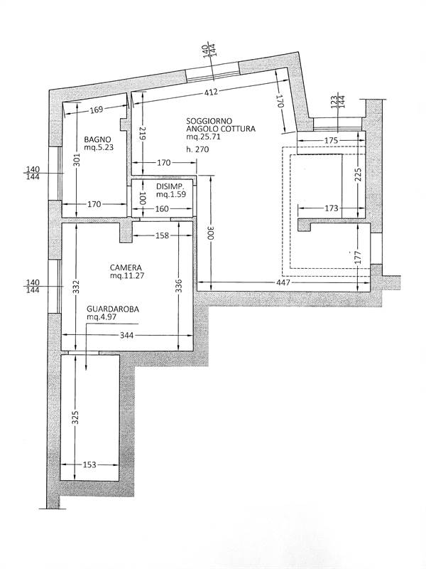
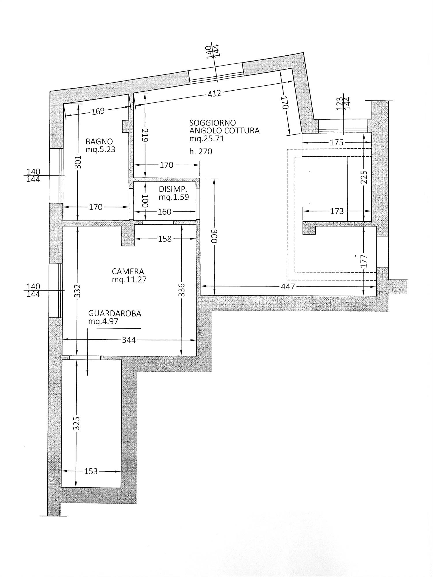
San Lazzaro - Centro - In zona servita e comoda a tutte le necessità, ampio e luminoso bilocale di recente costruzione al primo piano servito da ascensore con tripla esposizione composto da: ingresso, soggiorno con angolo cottura e zona pranzo ben disimpegnati, camera matrimoniale con ampia cabina armadio, bagno, cantina ed autorimessa ad € 25.000 con accesso da elevatore. All'interno della corte condominiale diversi posti auto di libero utilizzo. Infissi in legno con doppi vetri, tapparelle in pvc, pavimenti in parquet e gress, termoarredi, cappotto termico, impianto solare per il riscaldamento dell'acqua calda sanitaria. TERMO-AUTONOMO, Classe energetica C. - € 245.000 - Rif. SI 072 - Agenzia SherlockHome - Tel: 328.5821041 www.sherlockhome.it - PERIZIE E CONSULENZE GRATUITE - La geolocalizzazione su mappa è nelle vicinanze dell'immobile in oggetto e non precisa per motivi di privacy. Tutte le informazioni relative all'immobile in oggetto verranno fornite previa sottoscrizione del foglio visita.
Caratteristiche principali
Codice:
SI 072
Città:
San Lazzaro di Savena
Categoria:
Appartamento
Spese condominiali:
1.500 € / anno
Locali:
2
Camere:
1
Bagni:
1
Mq:
76
Box:
1
Mq Box:
14
Posti auto:
8
Piano:
1
Anno:
2007
Classe energetica:
C
Stato Immobile:
Buono
Grado:
Medio
Posizione:
Centro
Panorama:
Vista Aperta
Orientamento:
Est Nord Ovest
Lati Liberi:
3
Giardino:
No
Arredi:
Possibilità
Tipo Soggiorno:
Soggiorno
Tipo Cucina:
Angolo Cottura
Riscaldamento:
Autonomo
Tipo Riscaldam.:
Caldaia a Condensazione
Tipo Impianto:
Radiatori
Fonte Energetica:
Metano
Acqua Calda:
Autonoma
Raffrescamento:
Split
Infissi:
Legno Doppio Vetro
Serramenti:
Ottimo
Persiana:
Tapparella PVC
Pavim. Giorno:
Gres Porcellanato
Pavim. Notte:
Parquet
Pavim. Cucina:
Gres Porcellanato
Pavim. Bagno:
Gres Porcellanato
Accesso Disabili:
Nessuna Barriera
Accesso interno disabili:
Pieno accesso
Isolamento:
Presente
Isolamento termico:
Cappotto esterno
Isolamento acustico:
Isolamento completo
Accessori
Aria Condizionata
Ascensore
Canna Fumaria
Doppi Vetri
Fibra Ottica
Porta Blindata
Mappa
via renato torreggiani , 4 - San Lazzaro di Savena (BO)
Distanze
Posizione
Centro100 m
Parco pubblico100 m
Istruzione
Scuola materna100 m
Scuola elementare100 m
Scuola media100 m
Scuola superiore100 m
Mezzi di trasporto
Colonnina EV100 m
Fermata metro-bus-tram50 m
Stazione di servizio100 m
Stazione dei treni500 m
Altri servizi
Banca100 m
Chiesa100 m
Farmacia100 m
Ospedale500 m
Supermercato100 m
Video
Planimetrie
Cookie preference