ULTIMI 4 APPARTAMENTI NUOVI DA IMPRESA IN A4 NZEB

In vendita
Appartamento
San Lazzaro di Savena (San Lazzaro Centro)
495.000 €
Descrizione
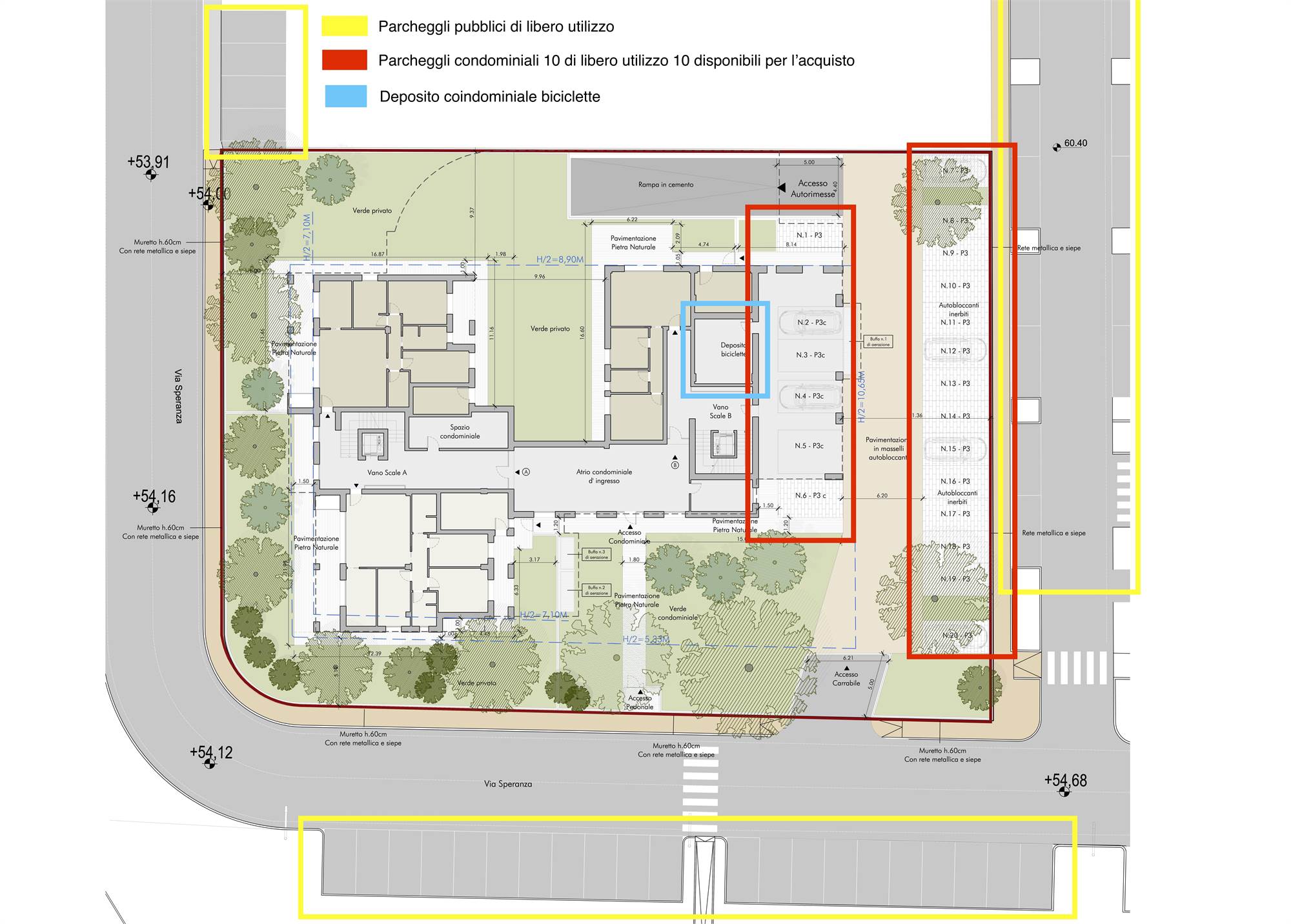
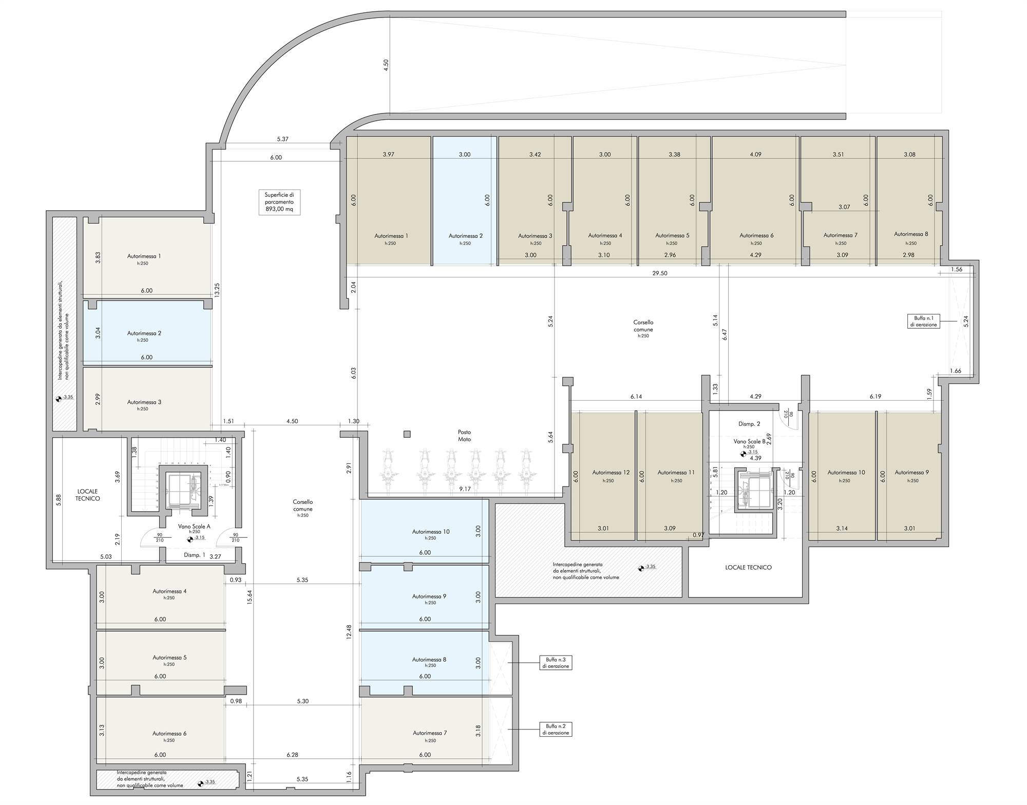
San Lazzaro di Savena fronte Parco Europa, AMPIO E LUMINOSO QUADRILOCALE NUOVO DA IMPRESA CON IMPORTANTE DETRAZIONE FISCALE (SISMA BONUS ACQUISTI) composto da soggiorno/cucina, 3 camere (matrimoniale, 2 singole), 2 bagni, 1 balcone di 12 mq, 1 terrazzo di 27 mq loggiato, cantina/vano tecnico. Spazi condominiali previsti: 10 posti auto condominiali coperti, deposito moto e bici, sala multifunzione. Autorimesse di ampie dimensioni € 37.000 posti auto scoperti secondo disponibilità ad € 10.000. Ogni appartamento è TERMO-AUTONOMO con fotovoltaico e solare privato (possibilità di aggiunta delle batterie di accumulo), riscaldamento a pavimento, raffrescamento e deumidificazione con pompe di calore, capitolato con rivestimenti e finiture di pregio. LAVORI INIZIATI - Consegna entro giugno 2027. Classe Energetica A4 NZEB (Nearly Zero Energy Building) - ULTIME SOLUZIONI DISPONIBILI - NESSUNA BARRIERA ARCHITETTONICA - € 495.000 - Rif. SI 073 - Agenzia SherlockHome - Tel: 328.5821041 www.sherlockhome.it - PERIZIE E CONSULENZE GRATUITE - La geolocalizzazione su mappa è nelle vicinanze dell'immobile in oggetto e non precisa per motivi di privacy. Tutte le informazioni relative all'immobile in oggetto verranno fornite previa sottoscrizione del foglio visita. IMMAGINI INDICATIVE DI POSSIBILI SOLUZIONI DI ARREDO
Caratteristiche principali
Codice:
SI 073
Città:
San Lazzaro di Savena (San Lazzaro Centro)
Categoria:
Appartamento
Locali:
4
Camere:
3
Bagni:
2
Mq:
130
Box:
1
Mq Box:
18
Posti auto:
1
Balconi:
1
Mq Balcone:
12
Terrazzi:
1
mq Terrazzo:
27
Piano:
1
Anno:
2026
Classe energetica:
A4
Stato Immobile:
In Costruzione
Grado:
Signorile
Posizione:
Centro
Panorama:
Vista Aperta
Orientamento:
Sud Ovest
Lati Liberi:
3
Giardino:
Comune
Arredi:
Non Arredato
Tipo Soggiorno:
Soggiorno
Tipo Cucina:
Angolo Cottura
Riscaldamento:
Autonomo
Tipo Riscaldam.:
Pompa di Calore
Tipo Impianto:
Pavimento
Fonte Energetica:
Fotovoltaico
Acqua Calda:
Autonoma a Pannelli
Raffrescamento:
Split
Infissi:
PVC Doppio Vetro
Serramenti:
Nuovo
Persiana:
Tapparella PVC
Pavim. Giorno:
Personalizzato
Pavim. Notte:
Personalizzato
Pavim. Cucina:
Personalizzato
Pavim. Bagno:
Personalizzato
Accesso Disabili:
Nessuna Barriera
Accessori
Aria Condizionata
Ascensore
Bagno Handicap
Canna Fumaria
Cancello Elettrico
Doppi Vetri
Impianto Domotica
Impianto Fotovoltaico
Pannelli Solari
Porta Blindata
Tapparelle Elettriche
Video Citofono
Mappa
via fornace - San Lazzaro di Savena (BO)
Planimetrie
Cookie preference