ULTIMO PANORAMICO ATTICO AL V° PIANO NUOVO IN A4 NZEB

In vendita
Appartamento
San Lazzaro di Savena (San Lazzaro Centro)
710.000 €
Descrizione
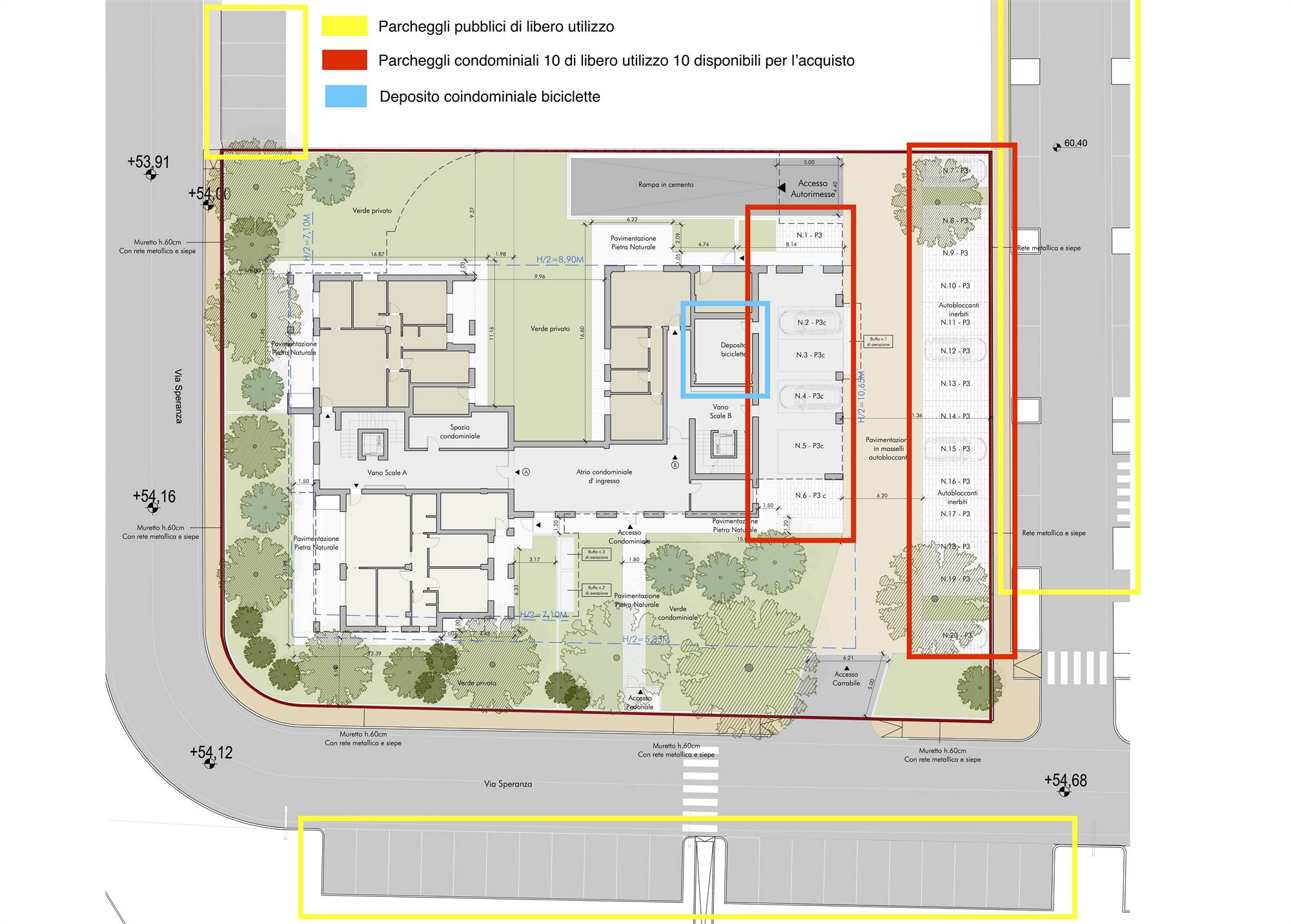
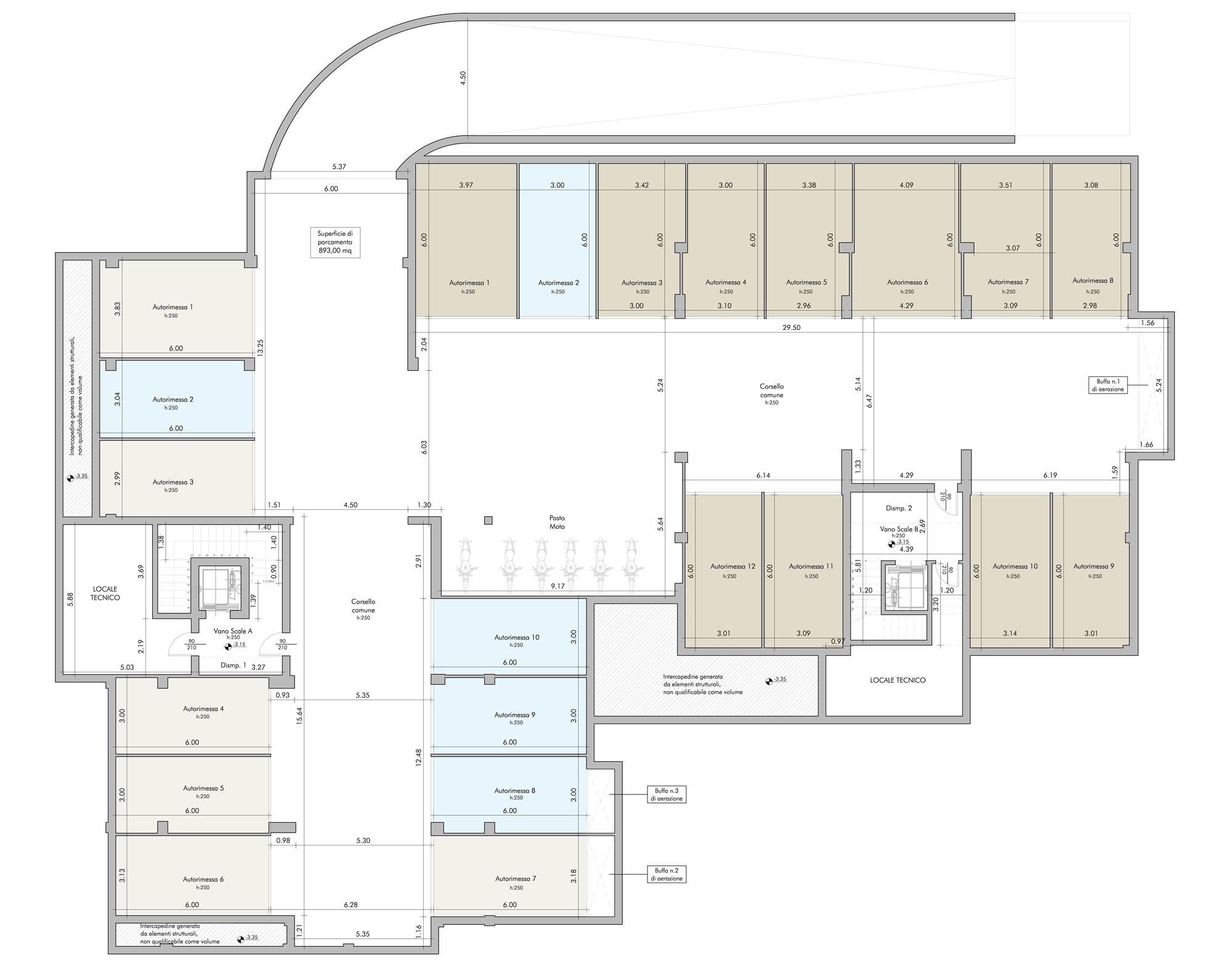
San Lazzaro di Savena fronte Parco Europa, ULTIMO PANORAMICO E LUMINOSO ATTICO NUOVO DA IMPRESA CON IMPORTANTE DETRAZIONE FISCALE (SISMA BONUS ACQUISTI) composto da ampio soggiorno angolo cottura (divisibile), 3 camere ( 1 matrimoniale con cabina armadio, 1 doppia, 1 singola), 2 bagni, lavanderia, PANORAMICO TERRAZZO esposto a sud con splendida vista sulle colline, secondo ampio terrazzo, cantina/vano tecnico, posto auto.. Spazi condominiali previsti: 10 posti auto coperti, deposito moto e bici, sala multifunzione. Autorimesse di ampie dimensioni € 37.000 posti auto coperti secondo disponibilità, € 10.000. Ogni appartamento è TERMO-AUTONOMO con fotovoltaico e solare privato (possibilità di aggiungere batterie di accumulo), riscaldamento a pavimento, raffrescamento e deumidificazione con pompe di calore, capitolato con rivestimenti e finiture di pregio. Consegna entro Giugno 2027. LAVORI INIZIATI - Classe Energetica A4 NZEB (Nearly Zero Energy Building) - ULTIME SOLUZIONI DISPONIBILI - NESSUNA BARRIERA ARCHITETTONICA - € 710.000 - Rif. SI 074 - Agenzia SherlockHome - Tel: 328.5821041 www.sherlockhome.it - PERIZIE E CONSULENZE GRATUITE - La geolocalizzazione su mappa è nelle vicinanze dell'immobile in oggetto e non precisa per motivi di privacy. Tutte le informazioni relative all'immobile in oggetto verranno fornite previa sottoscrizione del foglio visita. IMMAGINI INDICATIVE, RAPPRESENTANO IPOTETICHE SOLUZUIONI DI ARREDO.
Caratteristiche principali
Codice:
SI 074
Città:
San Lazzaro di Savena (San Lazzaro Centro)
Categoria:
Appartamento
Locali:
5
Camere:
3
Bagni:
2
Mq:
140
Box:
1
Mq Box:
18
Posti auto:
1
Mq Balcone:
17
Terrazzi:
2
mq Terrazzo:
20
Piano:
5
Anno:
2026
Classe energetica:
A4
Stato Immobile:
In Costruzione
Grado:
Signorile
Posizione:
Centro
Panorama:
Vista Aperta
Orientamento:
Nord Ovest Sud
Lati Liberi:
3
Giardino:
Comune
Arredi:
Non Arredato
Tipo Soggiorno:
Soggiorno
Tipo Cucina:
Angolo Cottura
Riscaldamento:
Autonomo
Tipo Riscaldam.:
Pompa di Calore
Tipo Impianto:
Pavimento
Fonte Energetica:
Fotovoltaico
Acqua Calda:
Autonoma a Pannelli
Raffrescamento:
Split
Infissi:
PVC Doppio Vetro
Serramenti:
Nuovo
Persiana:
Tapparella PVC
Pavim. Giorno:
Personalizzato
Pavim. Notte:
Personalizzato
Pavim. Cucina:
Personalizzato
Pavim. Bagno:
Personalizzato
Accesso Disabili:
Nessuna Barriera
Accesso interno disabili:
Pieno accesso
Isolamento:
Presente
Isolamento termico:
Cappotto esterno
Isolamento acustico:
Isolamento completo
Spessore cappotto (cm):
18
Destinato a residenti:
Si
Impianto d’irrigazione:
Si
VMC:
No
Accessori
Aria Condizionata
Ascensore
Bagno Handicap
Canna Fumaria
Cancello Elettrico
Doppi Vetri
Fibra Ottica
Impianto Domotica
Impianto Fotovoltaico
Lavanderia
Pannelli Solari
Porta Blindata
Video Citofono
Zanzariere
Mappa
via fornace, 41 - San Lazzaro di Savena (BO)
Distanze
Posizione
Centro600 m
Parco pubblico50 m
Istruzione
Scuola materna50 m
Scuola elementare50 m
Scuola media600 m
Scuola superiore600 m
Università1,5 km
Mezzi di trasporto
Fermata metro-bus-tram50 m
Stazione di servizio200 m
Stazione dei treni1 km
Altri servizi
Banca600 m
Chiesa600 m
Farmacia600 m
Ospedale1,5 km
Supermercato300 m
Video
Cookie preference