AMPIO E LUMINOSO APPARTAMENTO RISTRUTTURATO IN CENTRO

In vendita
Appartamento
San Lazzaro di Savena (San Lazzaro Centro)
590.000 €
Descrizione
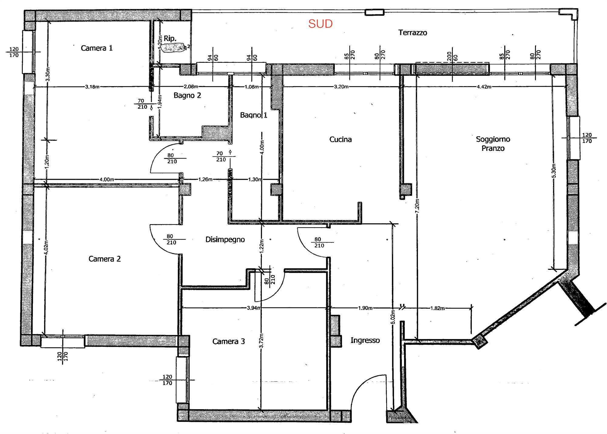
San Lazzaro Centro - In zona ricca di negozi, servizi, e comoda ai mezzi pubblici, libero su 3 lati e con affacci a sud; luminoso e ampio appartamento al terzo piano servito da ascensore recentemente e finemente ristrutturato. Composto da grande ingresso arredabile, salone doppio, cucina, 3 camere matrimoniali, 2 bagni completi e finestrati, ampio terrazzo con esposizione a sud di 22 mq provvisto di ripostiglio. Completano l'abitazione 1 cantina ed una autorimessa di 28 mq. Infissi in pvc con doppi vetri, tapparelle elettriche, pavimenti in parquet, illuminazione a led, ambienti climatizzati con pompe di calore e sistema di riscaldamento canalizzato. LIBERA A ROGITO - Classe energetica in fase di stesura - € 590.000 - Rif. SI 084 - Agenzia SherlockHome Tel: 328.5821041 - www.sherlockhome.it - PERIZIE E CONSULENZE GRATUITE. La geolocalizzazione su mappa è nelle vicinanze dell'immobile in oggetto e non precisa per motivi di privacy. Tutte le informazioni relative all'immobile in oggetto verranno fornite previa sottoscrizione del foglio visita.
Caratteristiche principali
Codice:
SI 084
Città:
San Lazzaro di Savena (San Lazzaro Centro)
Categoria:
Appartamento
Spese condominiali:
2.800 € / anno
Locali:
5
Camere:
3
Bagni:
2
Mq:
167
Box:
1
Mq Box:
28
Terrazzi:
1
mq Terrazzo:
22
Anno:
1980
Classe energetica:
G
Stato Immobile:
Ristrutturato
Mappa
via carlo jussi, 10 - San Lazzaro di Savena (BO)
Distanze
Posizione
Parco pubblico500 m
Istruzione
Scuola materna100 m
Scuola elementare100 m
Scuola media100 m
Scuola superiore500 m
Mezzi di trasporto
Colonnina EV10 m
Fermata metro-bus-tram10 m
Stazione di servizio500 m
Stazione dei treni1 km
Altri servizi
Banca10 m
Chiesa100 m
Farmacia100 m
Ospedale1 km
Supermercato50 m
Planimetrie
Cookie preference