VILLA DI PREGIO UNIFAMILIARE CON PISCINA SU UNICO LIVELLO

In vendita
Villa
Granarolo dell'Emilia (Viadagola)
1.550.000 €
Descrizione
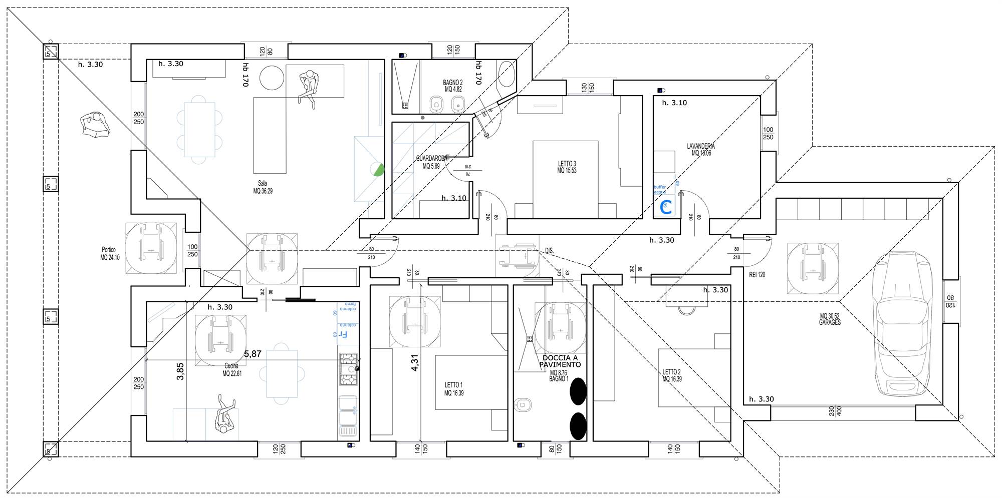
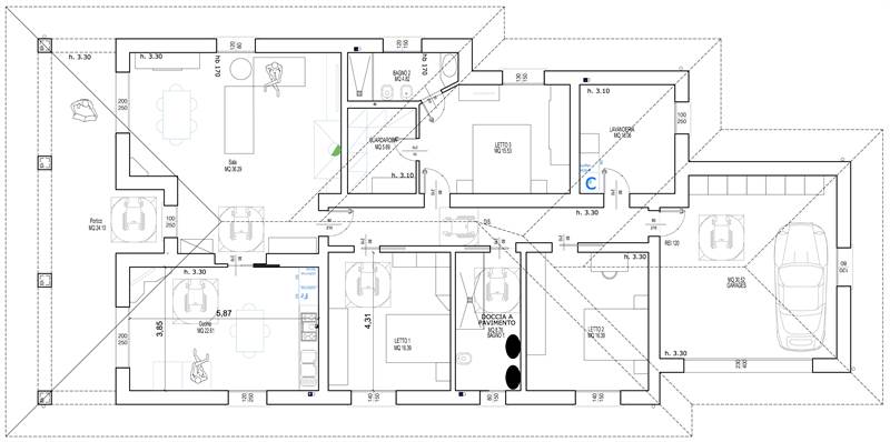
Granarolo - A 500 mt dal centro paese in contesto verde, riservato, silenzioso e comodo a tutti i servizi (mezzi pubblici, supermercati, negozi etc...) villa di pregio di nuova costruzione (2022) ad alto risparmio energetico su un unico livello e con ambienti di altezze 3mt. Composta da salone di 40 mq, cucina di oltre 20 mq, 3 ampie camere matrimoniali (una con cabina armadio), 2 bagni finestrati, lavanderia, autorimessa doppia, sottotetto accessibile dall'interno con scala retrattile. Ampio giardino privato in parte pavimentato (utile per comodi posti auto) ed in parte a verde con sistema di irrigazione, per totali 800 mq c.a. Piscina 5x13 / h 1.70 con copertura invernale e illuminazione notturna. Cucina esterna in muratura con impianto a gas. Pavimenti e rivestimenti in gres effetto cemento Marazzi, infissi in alluminio con vetrocamera antisfondamento, zanzariere e tapparelle elettriche con sistema frangisole, sistema di allarme con videosorveglianza esterna ed interna, impianto fotovoltaico a 7kwh. LIBERO A ROGITO. Classe energetica A3 - € 1.550.000 Rif. SI 086 - Agenzia SherlockHome Tel: 328.5821041 - www.sherlockhome.it - PERIZIE E CONSULENZE GRATUITE. La geolocalizzazione su mappa è nelle vicinanze dell'immobile in oggetto e non precisa per motivi di privacy. Immagini con arredi simulati da rendering, Tutte le informazioni relative all'immobile in oggetto verranno fornite previa sottoscrizione del foglio visita.
Caratteristiche principali
Codice:
SI 086
Città:
Granarolo dell'Emilia (Viadagola)
Categoria:
Villa
Locali:
6
Camere:
3
Bagni:
2
Mq:
300
Box:
1
Mq Box:
40
Mq Giardino:
800
Piano:
Terra
Anno:
2022
Classe energetica:
A3
Stato Immobile:
Nuovo
Grado:
Signorile
Posizione:
Centro
Panorama:
Vista Aperta
Orientamento:
Nord Ovest Sud Est
Lati Liberi:
4
Giardino:
Privato
Arredi:
Non Arredato
Tipo Soggiorno:
Salone
Tipo Cucina:
Abitabile
Riscaldamento:
Autonomo
Tipo Riscaldam.:
Pompa di Calore
Tipo Impianto:
Pavimento
Fonte Energetica:
Fotovoltaico
Acqua Calda:
Autonoma
Raffrescamento:
Pavimento
Infissi:
Metallo Doppio Vetro
Serramenti:
Nuovo
Persiana:
Tapparella Metallo
Pavim. Giorno:
Gres Porcellanato
Pavim. Notte:
Gres Porcellanato
Pavim. Cucina:
Gres Porcellanato
Pavim. Bagno:
Gres Porcellanato
Accesso Disabili:
Nessuna Barriera
Accesso interno disabili:
Pieno accesso
Isolamento:
Presente
Isolamento termico:
Cappotto esterno
Isolamento acustico:
Isolamento completo
Mappa
via dell'integrazione, 7 - Granarolo dell'Emilia (BO)
Distanze
Posizione
Centro500 m
Parco pubblico500 m
Istruzione
Scuola materna500 m
Scuola elementare500 m
Scuola media500 m
Mezzi di trasporto
Fermata metro-bus-tram500 m
Altri servizi
Banca500 m
Chiesa500 m
Farmacia500 m
Planimetrie
Cookie preference