PORZIONE DI BIFAMILIARE DI RECENTE COSTRUZIONE

In vendita
Villetta schiera
Bologna
950.000 €
Descrizione
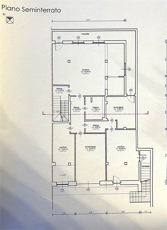
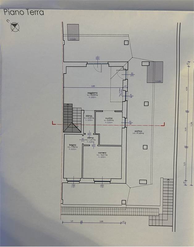
A San Lazzaro di Savena, in contesto residenziale tranquillo e immerso nel verde ma comodo ai servizi, proponiamo in vendita una villa di testa semi-indipendente disposta su tre livelli. Al piano seminterrato si trovano un’ampia taverna, bagno, lavanderia, due cantine e garage con accesso diretto. Al piano terra, accesso indipendente, luminoso soggiorno, cucina abitabile separata, camera matrimoniale, bagno e ampio giardino privato ideale per momenti di relax. Al piano superiore, una mansarda spaziosa adibita a camera con bagno privato. L’immobile si distingue per la sua luminosità, gli spazi generosi e la tripla indipendenza e il perfetto stato manutentivo, offrendo comfort e privacy in una posizione strategica e riservata. Soluzione ideale per chi cerca tranquillità, verde e comodità a pochi minuti dal centro di Bologna. € 950.000 TRATTABILI Rif. SI 118- Agenzia Sherlock Home - Tel. 328.5821041 - www.sherlockhome.it - PERIZIE E CONSULENZE GRATUITE. La geolocalizzazione su mappa è nelle vicinanze dell'immobile in oggetto e non precisa per motivi di privacy. Tutte le informazioni relative all'immobile in oggetto verranno fornite previa sottoscrizione del foglio visita.
Caratteristiche principali
Codice:
SI 118
Città:
Bologna
Categoria:
Villetta schiera
Locali:
8
Camere:
3
Bagni:
3
Mq:
267
Box:
1
Mq Box:
19
Posti auto:
2
Mq Giardino:
100
Piano:
Terra
Classe energetica:
F
Stato Immobile:
Ottimo
Grado:
Signorile
Posizione:
Periferia
Panorama:
Vista Giardino
Orientamento:
Nord Ovest Sud Est
Lati Liberi:
3
Giardino:
Privato
Arredi:
Non Arredato
Tipo Soggiorno:
Soggiorno
Tipo Cucina:
Abitabile
Riscaldamento:
Autonomo
Tipo Riscaldam.:
Caldaia
Tipo Impianto:
Radiatori
Fonte Energetica:
Gas
Acqua Calda:
Autonoma
Raffrescamento:
Split
Infissi:
Legno Doppio Vetro
Serramenti:
Ottimo
Persiana:
Oscurante Legno
Pavim. Giorno:
Ceramica
Pavim. Notte:
Parquet
Pavim. Cucina:
Ceramica
Pavim. Bagno:
Ceramica
Accesso Disabili:
No
Accesso interno disabili:
Parziale
Accessori
Antifurto
Aria Condizionata
Armadio a Muro
Camino
Canna Fumaria
Cassaforte
Cancello Elettrico
Doppi Vetri
Doppio Ingresso
Fibra Ottica
Impianto Satellitare
Ingresso Indipendente
Passaggio Automobilistico
Passaggio Pedonale
Porta Blindata
Mappa
via fratelli canova, 56 - Bologna (BO)
Distanze
Posizione
Centro200 m
Parco pubblico50 m
Istruzione
Scuola materna500 m
Scuola elementare500 m
Scuola media500 m
Scuola superiore500 m
Mezzi di trasporto
Fermata metro-bus-tram100 m
Stazione dei treni1 km
Altri servizi
Banca500 m
Chiesa500 m
Ospedale100 m
Supermercato500 m
Cookie preference