BOLOGNA CENTRO - SPAZIOSO QUADRILOCALE ZONA MARCONI

In vendita
Appartamento
Bologna (Centro storico)
485.000 €
Descrizione
BOLOGNA CENTRO - SPAZIOSO QUADRILOCALE ZONA MARCONI

ZONA E CONTESTO - BOLOGNA CENTRO STORICO PRESSI STAZIONE CENTRALE - Comodissimo a tutti i collegamenti, bus, tram, treni, con gli innumerevoli negozi del centro di Bologna, IDEALE ANCHE COME INVESTIMENTO a scopo di locazione lunga, breve o turistica.

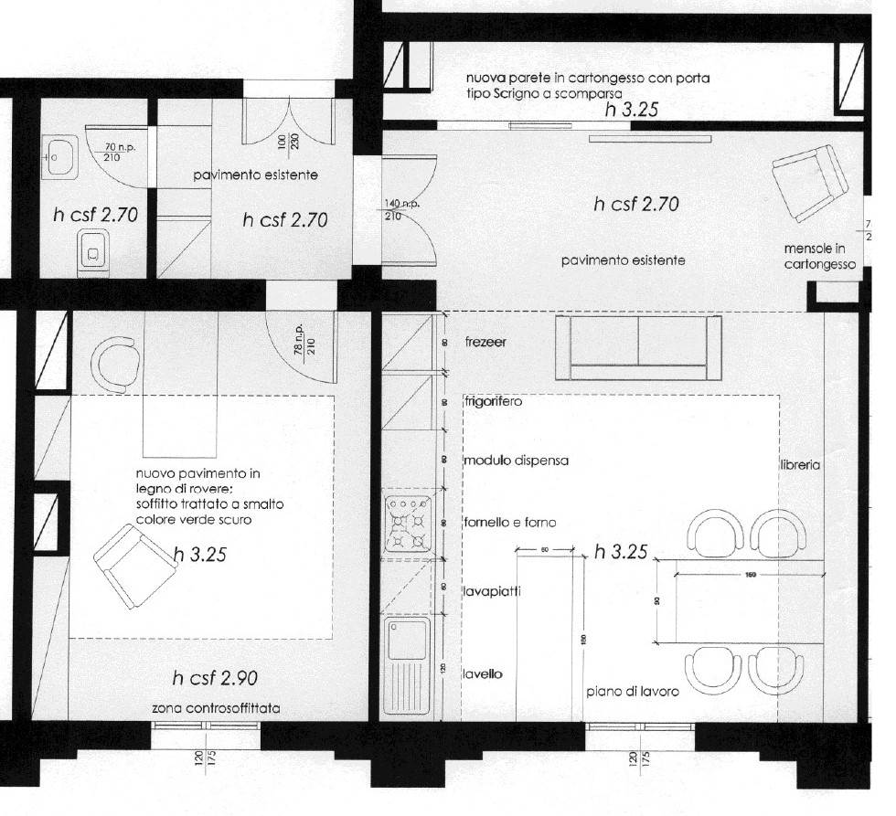
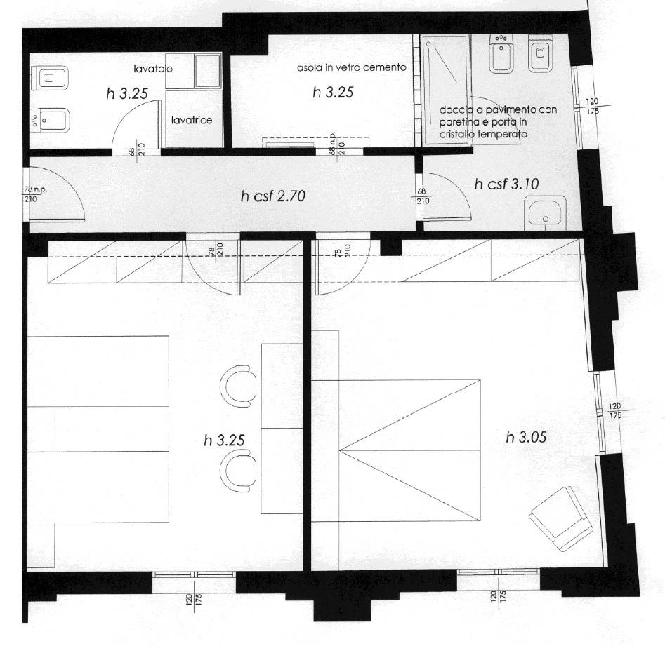
COMPOSIZIONE - Ingresso su disimpegno, grande salone signorile super abitabile di circa 35 mq con angolo cucina, cabina armadio-ripostiglio con ante scorrevoli di lunghezza circa 5 metri, ulteriore disimpegno notte, due camere matrimoniali, due bagni (di cui uno cieco e l'altro con finestra, molto luminoso e spazioso), ripostiglio. Completa la proprietà una studio finestrato con ingresso indipendente con bagno privato (oppure terza camera), cantina al piano interrato. L'immobile può anche essere suddiviso in appartamento destinato alla locazione.

CARATTERISTICHE - Scaldabagno a gas, infissi con vetrocamera in PVC, radiatori iin ghisa con contacalorie e valvole, parquet nelle camere, porte in legno nuove, impianto condizionatore.

Classe energetica F - EP gl, nren 201,38 - Prezzo € 485.000 - Rif. SM 145

Agenzia Immobiliare Sherlock Home

Tel. 328.5821041 - www.sherlockhome.it

PERIZIE E CONSULENZE GRATUITE.

La geolocalizzazione su mappa è nelle vicinanze dell'immobile in oggetto e non precisa per motivi di privacy.

Immagini e planimetrie di repertorio a scopo puramente illustrativo e indicativo, senza valore contrattuale.

Tutte le informazioni più specifiche relative all'immobile in oggetto verranno fornite previa sottoscrizione del foglio visita.
Caratteristiche principali
Codice:
SI 145
Città:
Bologna (Centro storico)
Categoria:
Appartamento
Locali:
4
Mq:
140
Anno:
1950
Classe energetica:
F
Mappa
via milazzo , 13 - Bologna (BO)
Cookie preference