APPARTAMENTO DI 120 mq NUOVO DA IMPRESA

In vendita
Appartamento
San Lazzaro di Savena (San Lazzaro Centro)
590.000 €
Descrizione
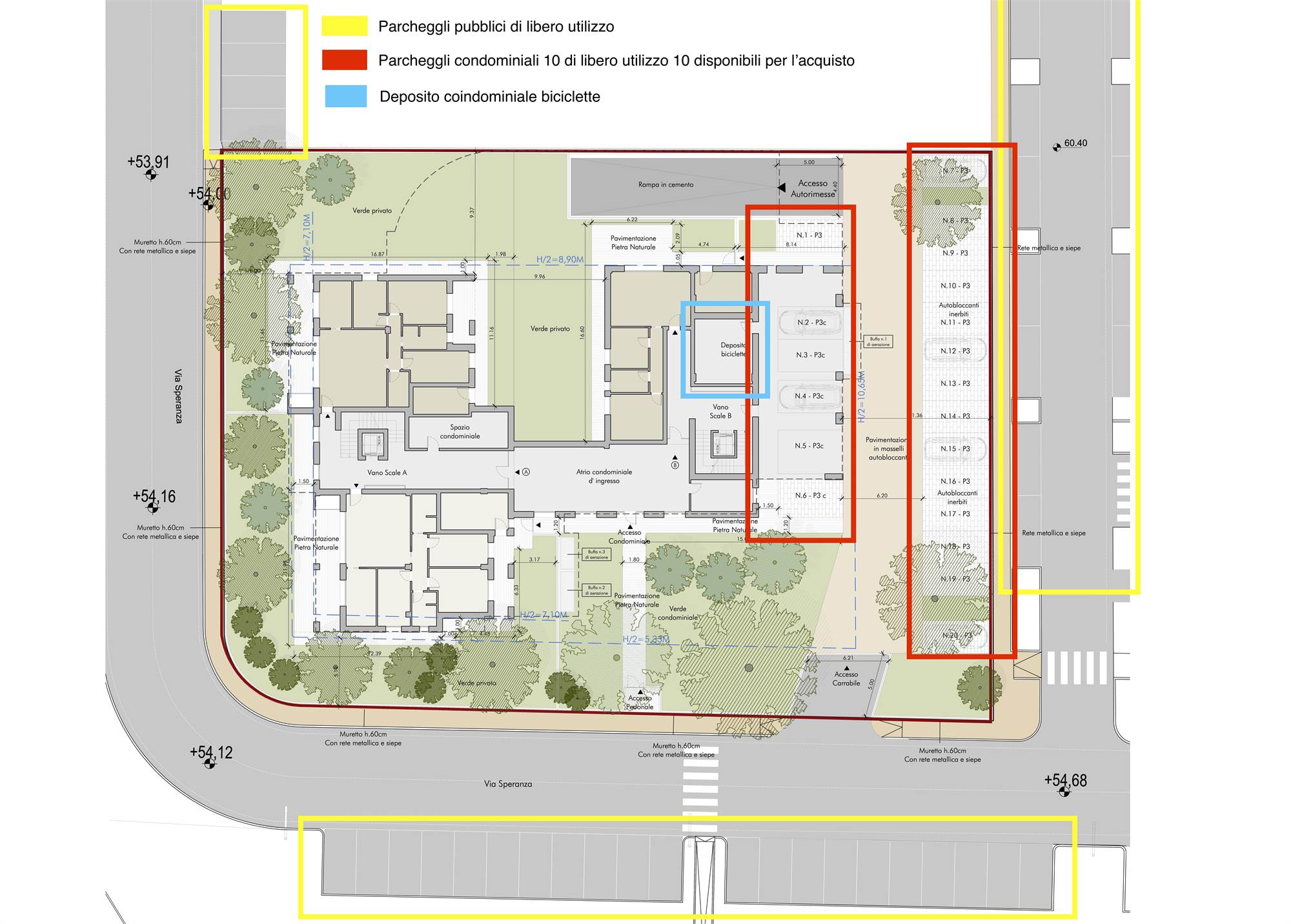
San Lazzaro di Savena fronte Parco Europa, POSSIBILITA' DI ULTIMO APPARTAMENTO DI 120 NUOVO DA IMPRESA CON IMPORTANTE DETRAZIONE FISCALE (SISMA BONUS ACQUISTI) composto da ampio soggiorno angolo cottura (divisibile), 3 camere ( 1 matrimoniale, 1 singola, 1 doppia), 2 bagni completi, lavanderia, AMPIO E LUMINOSO TERRAZZO di 27 mq esposto a sud con gradevole vista se aree verdi/colline, secondo terrazzo 9 mq calpestatili, cantina/vano tecnico. Spazi condominiali previsti: 10 posti auto coperti, deposito moto e bici, sala multifunzione. Autorimesse di 18 mq calpestatili ad € 37.000. Ogni appartamento è TERMO-AUTONOMO con fotovoltaico e solare privato (possibilità di aggiungere batterie di accumulo), riscaldamento a pavimento, raffrescamento e deumidificazione con pompe di calore, capitolato con rivestimenti e finiture di pregio. Consegna entro Giugno 2027. LAVORI INIZIATI - Classe Energetica A4 NZEB (Nearly Zero Energy Building) - ULTIME SOLUZIONI DISPONIBILI - NESSUNA BARRIERA ARCHITETTONICA - € 590.000 - Rif. SI 072 - Agenzia SherlockHome - Tel: 328.5821041 www.sherlockhome.it - PERIZIE E CONSULENZE GRATUITE - La geolocalizzazione su mappa è nelle vicinanze dell'immobile in oggetto e non precisa per motivi di privacy. Tutte le informazioni relative all'immobile in oggetto verranno fornite previa sottoscrizione del foglio visita. IMMAGINI INDICATIVE, RAPPRESENTANO IPOTETICHE SOLUZUIONI DI ARREDO.
Caratteristiche principali
Codice:
SM 072
Città:
San Lazzaro di Savena (San Lazzaro Centro)
Categoria:
Appartamento
Locali:
5
Camere:
3
Bagni:
2
Mq:
151
Box:
1
Mq Box:
18
Posti auto:
1
Terrazzi:
2
mq Terrazzo:
42
Piano:
1
Anno:
2027
Classe energetica:
A4
Stato Immobile:
In Costruzione
Grado:
Signorile
Posizione:
Centro
Panorama:
Vista Aperta
Orientamento:
Nord Ovest Sud
Lati Liberi:
3
Giardino:
Comune
Arredi:
Non Arredato
Tipo Soggiorno:
Salone
Tipo Cucina:
Abitabile
Riscaldamento:
Autonomo
Tipo Riscaldam.:
Pompa di Calore
Tipo Impianto:
Pavimento
Fonte Energetica:
Fotovoltaico
Acqua Calda:
Autonoma a Pannelli
Raffrescamento:
Split
Infissi:
PVC Doppio Vetro
Serramenti:
Nuovo
Persiana:
Tapparella PVC
Pavim. Giorno:
Personalizzato
Pavim. Notte:
Personalizzato
Pavim. Cucina:
Personalizzato
Pavim. Bagno:
Personalizzato
Accesso Disabili:
Nessuna Barriera
Accesso interno disabili:
Pieno accesso
Isolamento:
Presente
Isolamento termico:
Cappotto esterno
Isolamento acustico:
Isolamento completo
Accessori
Aria Condizionata
Ascensore
Bagno Handicap
Canna Fumaria
Cancello Elettrico
Doppi Vetri
Fibra Ottica
Impianto Domotica
Impianto Fotovoltaico
Lavanderia
Pannelli Solari
Parco Condominiale
Porta Blindata
Ripostiglio
Mappa
via fornace, 41 - San Lazzaro di Savena (BO)
Cookie preference